titlecabana
projectcompetition
teamindividual
year2022/2
The Tiny House movement gained strength worldwide, driven by the need for adaptable housing that captured the interest of homeowners. Considering these factors, the Tiny House project was designed as an off-grid system, functioning without urban infrastructure.
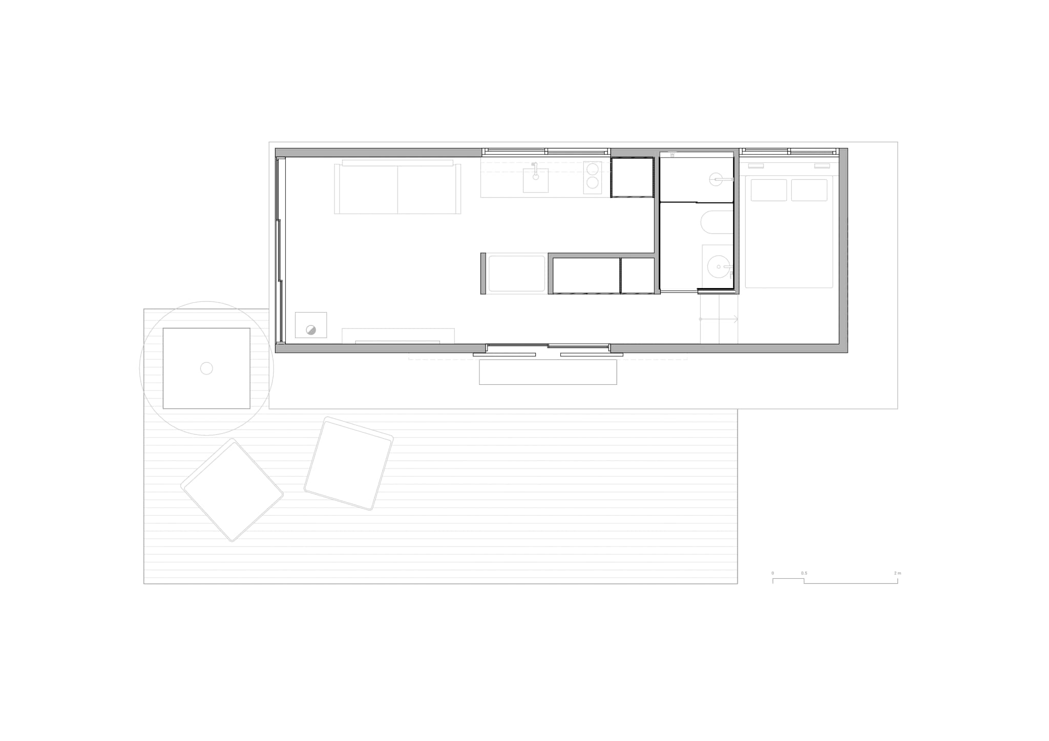
With this in mind, the site was chosen for its isolation, further emphasizing the absence of human resources. Located in the Scottish Highlands, “The Lake House” has 25 m² and is based on a cozy concept, with open access to the surrounding landscape, making the environment part of the architecture.
Inside the house, oak wood was primarily used, bringing warmth to the space and maintaining natural materials.
The system that operates the house is located in a small area at the back of the cabin. Inside are the rainwater harvesting system, the water heating system, and the plumbing equipment. The house is managed by three different compartments that make up the wastewater system: the fresh water tank, the gray water tank, and the energy supplied by solar panels.












