·
← index






project — 07 images
loft 6x6
- project
- academic - u. presbiteriana mackenzie
- team
- individual
- year
- 2021/1
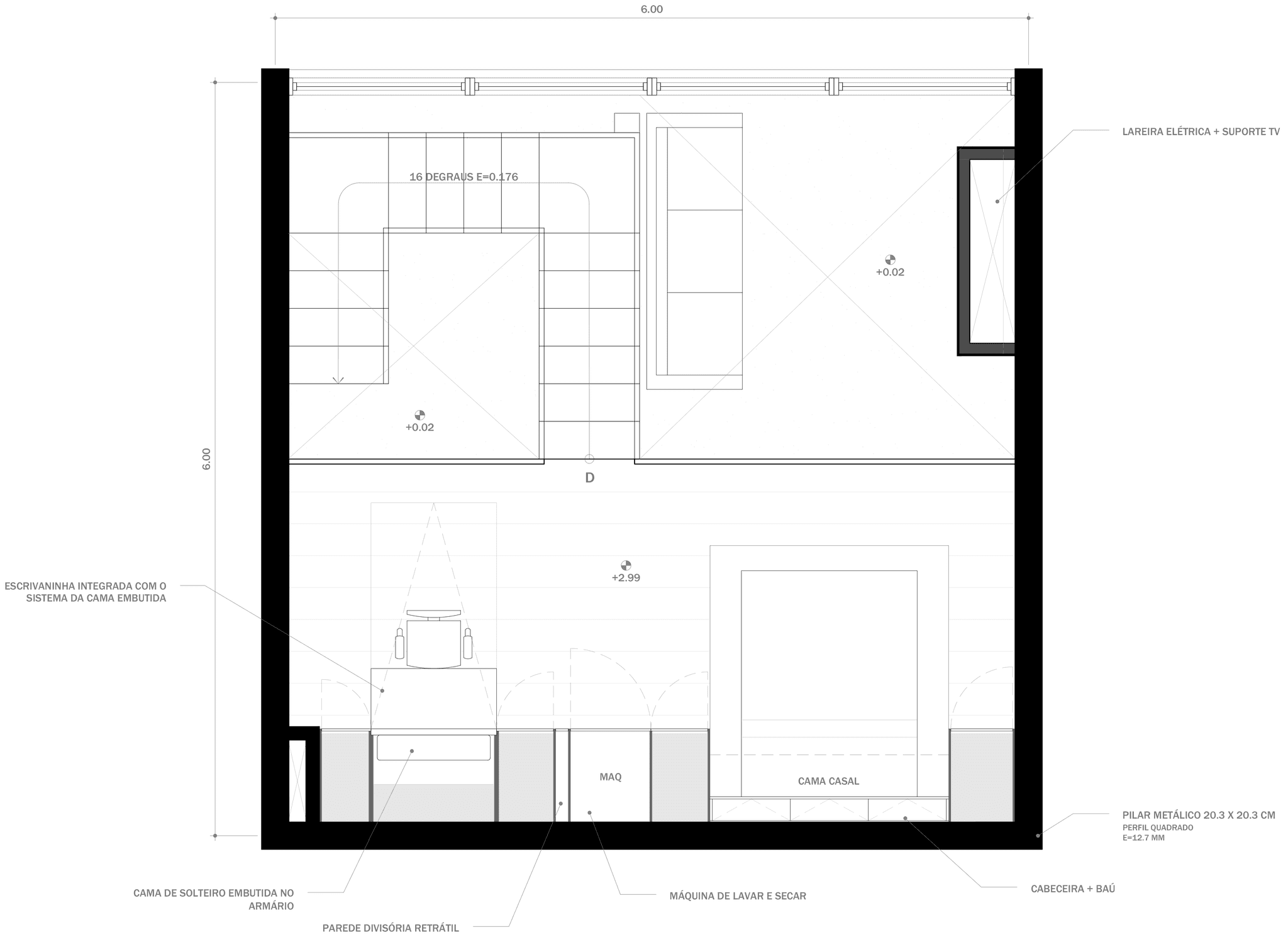
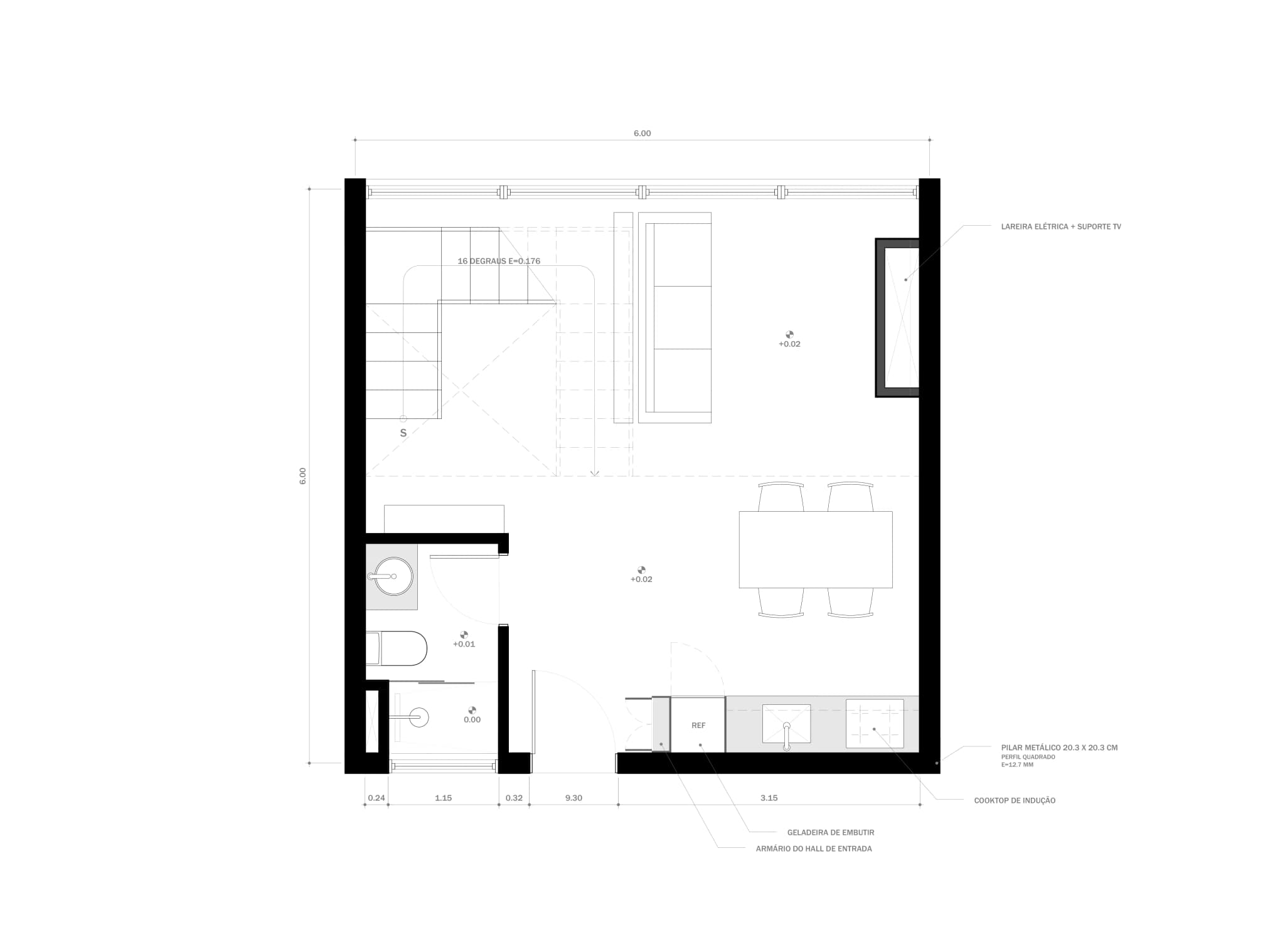
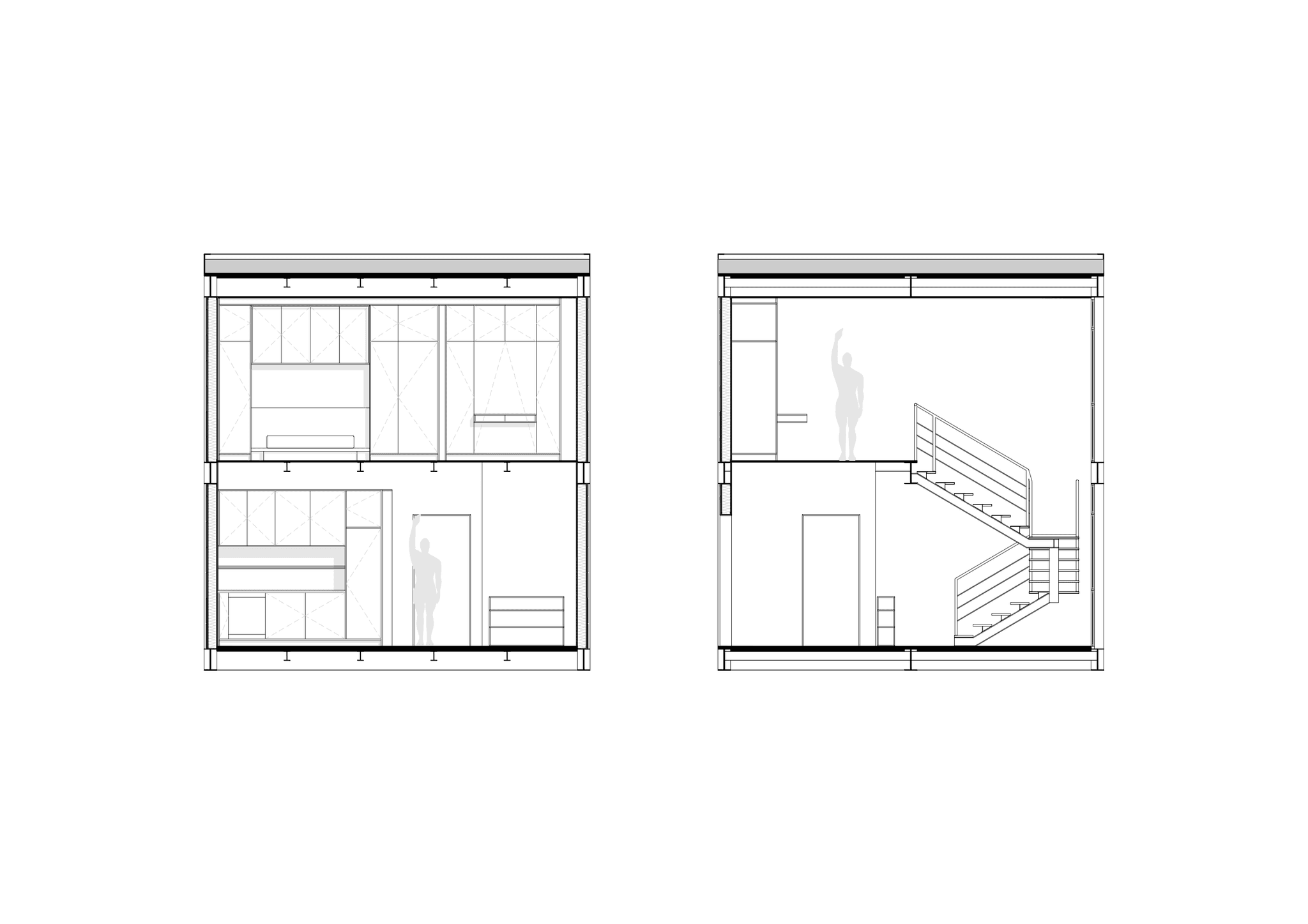
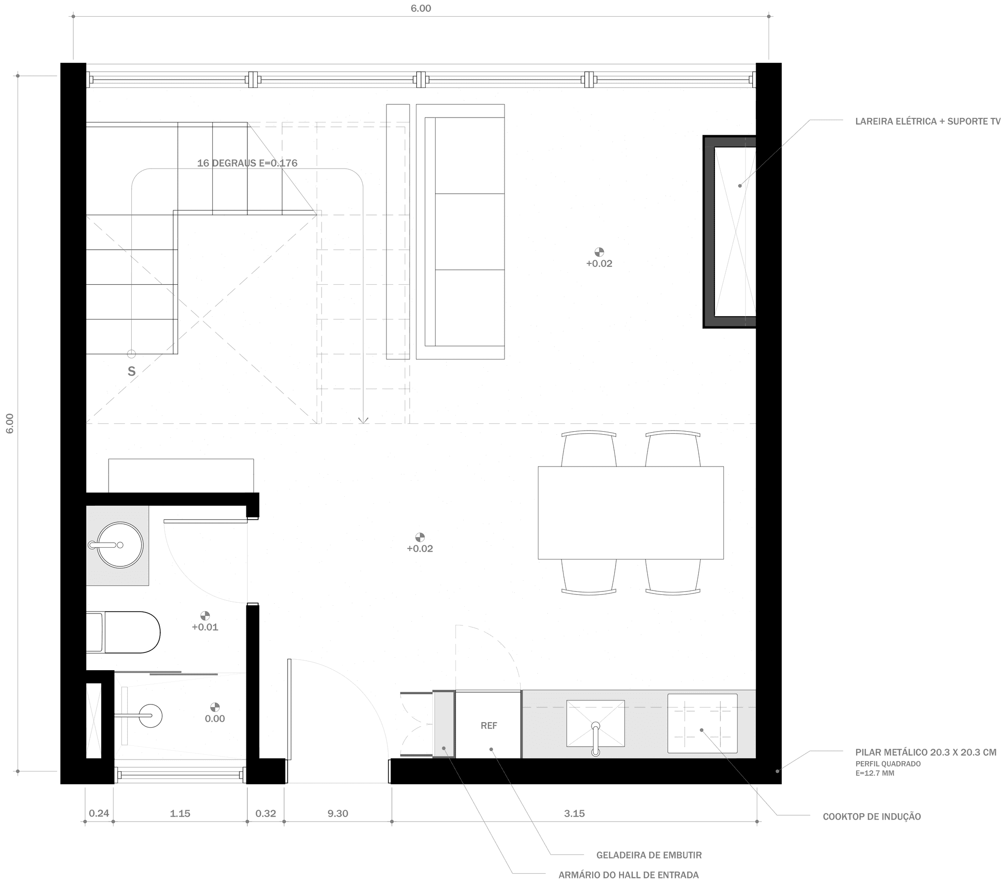
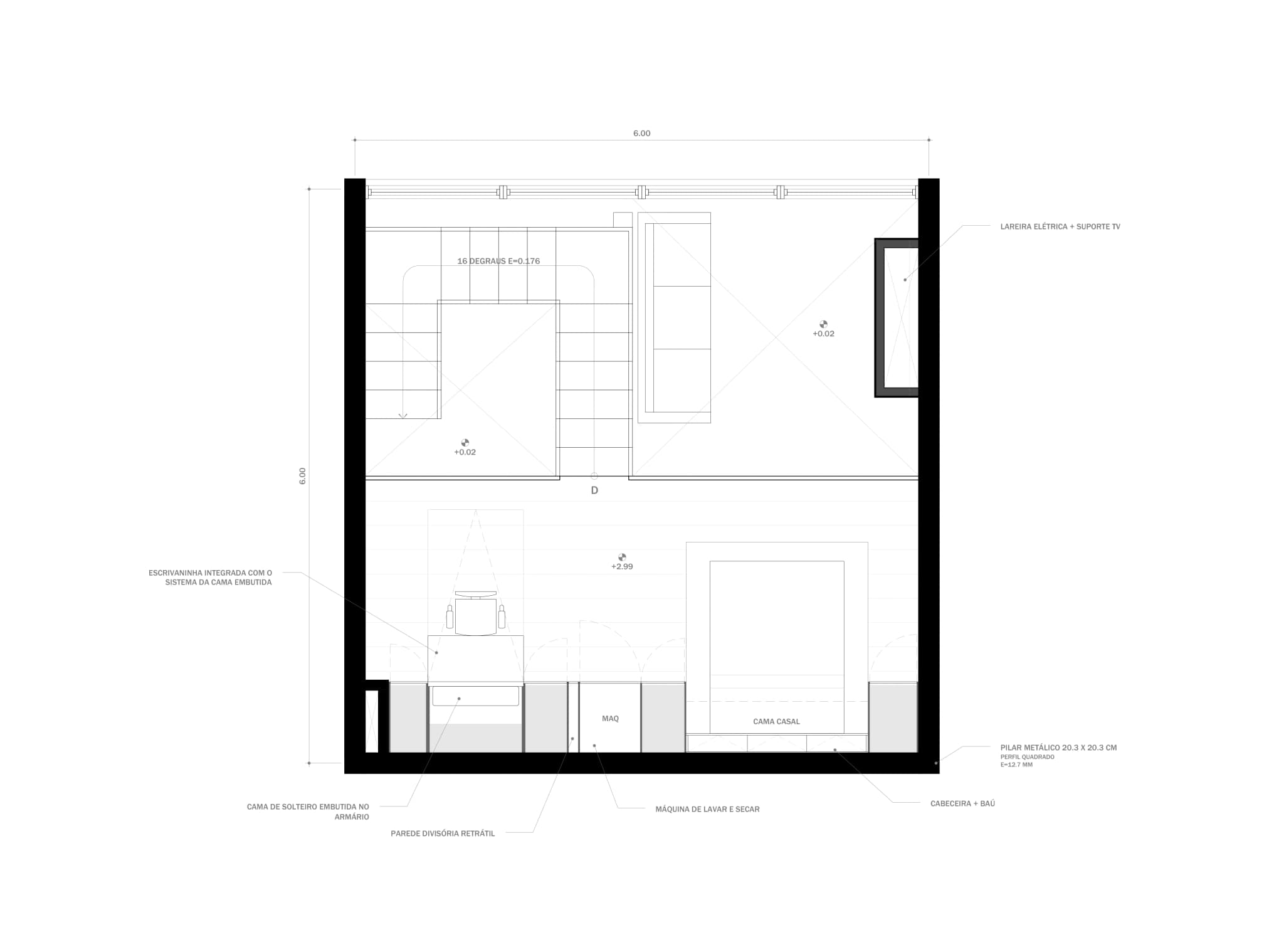
Based on the creation of the Quadra Cubo, 6m x 6m lofts were developed to form its composition. The units were built with a metal structure and drywall walls supported by a steel frame.
The layout was designed with the comfort and well-being of future residents in mind.
Designed to accommodate a maximum of three people, the loft has a spacious ground floor integrating the living room and kitchen, optimizing the available area.
On the second level, the mezzanine was designed with a main double bed and another single bed embedded in the closet, allowing flexible use depending on each family's needs.

01 / 07

02 / 07

03 / 07

04 / 07

05 / 07

06 / 07

07 / 07